Обяви 0 За нас Контакти
Продава КЪЩА
град Варна, м-т Евксиноград
1 300 000 €
2 542 579.00 лв.

(2 915 €, 5 701.24 лв./m2)
Цената е с включено ДДС
История на цената
Коригирана в 12:29 на 9 май, 2024 год.
Обявата е посетена 2926 пъти.
Площ:
446 m2
Двор:
400 m2
Етаж:
0 от 3
Строителство:
Тухла, 2023 г.

Описание на имота:


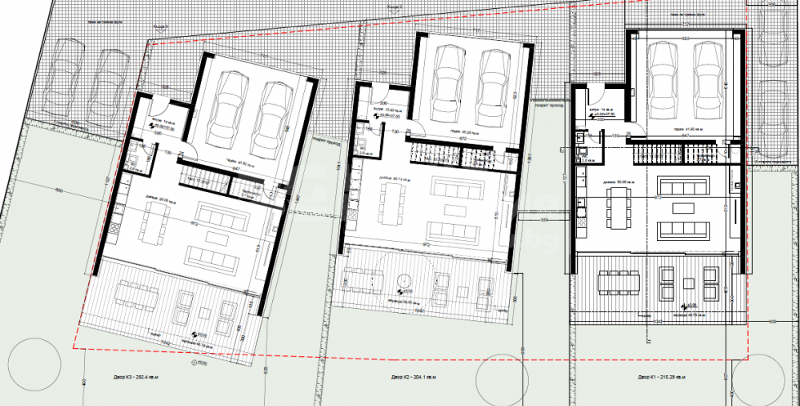
'Купи в България' Ви предлага за продажба луксозни къщи, намираща се на метри от морето и разположена в най-добрата локация за живеене в гр. Варна - м-т Евксиноград. Проектът включва три къщи в парцел с обща площ от 1300 кв.м.

Имотът е със разгърната застроена площ от 446 кв. м и прилежащ двор около 400 кв. м (около 200 кв.м. остават незастроени).

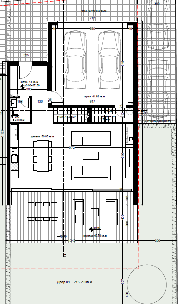
На първия етаж са разположени- входно предверие (14 кв. м), дневна (50.05 кв. м), тоалетна (2.8 кв. м), гараж (41.92 кв. м), техническо помещение (3.65 кв. м). Конструктивна височина на етажа е 3.30 метра, а светлата височина 2.95 метра. Застроената площ на етажа е 130.38 кв. м.

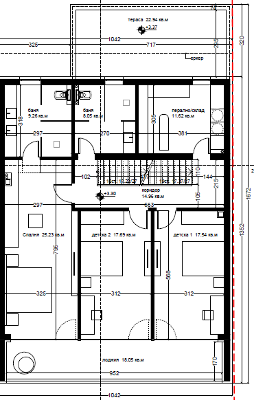
На втория етаж са разположени - коридор (14.96 кв. м,), спалня (25.23 кв.м) с баня (9.26 кв.м), баня (8.05 кв. м), детска стая (17.54 кв. м), детска стая (17.69 кв. м).
Конструктивна височина на етажа 3.10 м, а светлата височина 2.75 м. Застроената площ на втори етаж е 163.82 кв. м.

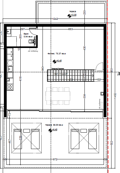
На третия етаж са разположени - фитнес (75.37 кв. м), баня (5.94 кв. м), тераса (58.59 кв. м). Конструктивна височина на етажа 3.10 м, а светлата височина е 2.75 м. Застроената площ на трети етаж е 151.3 кв. м.

Имотите се продават в степен на завършеност по БДС.

Срок за изпълнение:

Към момента е пред Акт 15.
АКТ 16 е предвиден за краят на 2023 г.

За повече информация, организиране на оглед или други въпроси, моля не се колебайте да се свържете с нас на посочените в обявата телефони! ID 22168
Особености
Тухла
В строеж
За контакт:
052 630 830

Този имот се предлага само на частни лица
Агенция:
КУПИ В БЪЛГАРИЯ
0897 630 830
КУПИ В БЪЛГАРИЯ logo
Медал за прослужено време
В imot.bg от 2013 г.
kupivbg.imot.bg
Адрес:
област Варна, гр. Варна, ул. Акад. Андрей Сахаров 19
http://www.kupiv.bg
ИЗПРАТИ ЗАПИТВАНЕ
ИЗПРАТИ ЗАПИТВАНЕТО

Продава КЪЩА
град Варна, м-т Евксиноград
Обява: 1j165104313387240

1 300 000 €
2 542 579.00 лв.
История на цената
(2 915 €, 5 701.24 лв./m2)

Цената е с включено ДДС
ЗАПАЗИ ОБЯВАТА

Местоположение: град Варна, м-т Евксиноград

Допълнителни данни за имотите в района и сравнение с други райони

Покажи

Период

и 5 месеца

* Средните цени са определени чрез медианна стойност