Обяви За нас Контакти
Продава 1-СТАЕН
град Варна, Изгрев
72 900 €
142 580.01 лв.

(1 551 €, 3 033.49 лв./m2)
Цената е с включено ДДС
История на цената
Публикувана в 16:28 на 3 април, 2026 год.
Обявата е посетена 26 пъти.
Площ:
47 m2
Етаж:
1-ви от 5
Строителство:
Тухла, Ще бъде въведен в експлоатация 2027 г.

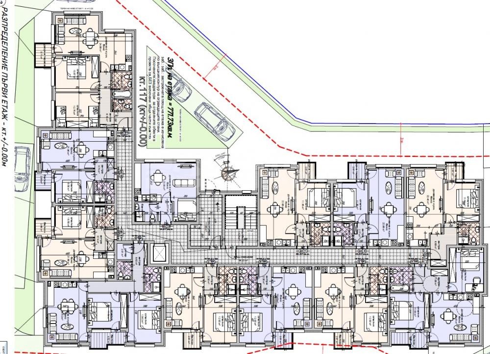
Описание на имота:


Компания за недвижими имоти 'Купи в България' има удоволствието да Ви предложи за продажба апартаменти в новострояща се жилищна сграда с панорама, разположена в кв. Изгрев.

Сградата е ситуирана в зелен район с изградена улична инфраструктура на 400 м. от бул.Христо Смирненски. Във функционално отношение сградата е решена на 4 етажа, които са проектирани изцяло в правилни форми, създавайки максимален комфорт на живущите и лесно усвояване на интериорните пространства. Общият брой на апартаментите е 37. За удобство на живущите е подсигурен хидравличен асансьор с кабина от най- висок клас. Към всички апартаменти са осигурени избени помещения.

Сградата е проектирана в модерен минималистичен стил. За завършването на фасадата са предвидени 10 см. топлоизолация EPS, покрити с водоотблъскваща силикатна мазилка. Прозорците на сградата са във френски стил със 7-камерна ПВЦ дограма. Има обособени места за климатичните тела.

Апартаментите в сградата се продават в степен на завършеност по БДС. Жилищата са с правилни форми, без излишни чупки и скосени пространства. Има възможност за обединяване и завършване до ключ. Предлагат се апартаменти с една и две спални.

Паркиране: Имотът разполага с паркоместа на ниво терен и подземни.

Предимства
само 37 апартамента в сградата;
избени помещения към всички апартаменти
тих и зелен район с улична инфраструктура;
гъвкава схема на плащане, според възможностите на клиента.
безплатно кредитно консултиране, при нужда от банкови средства.
доказан строител с дългогодишен опит в бранша.
Срок за въвеждане в експлоатация: края на 2027 година!

За повече информация и огледи на място, не се колебайте да се свържете с нас!

ID 36159
Особености
Тухла
Асансьор
С паркинг
За контакт:
0897 630 830

Този имот се предлага само на частни лица
Брокер:
Диана Василева
0897 630 830
Офис: ул. 'Акад. Андрей Сахаров' 19, вх. 1 партер
Още оферти от брокера: Продава | Дава под наем | Купува | Наема
Агенция:
КУПИ В БЪЛГАРИЯ
0897 630 830
КУПИ В БЪЛГАРИЯ logo
Медал за прослужено време
В imot.bg от 2013 г.
kupivbg.imot.bg
Адрес:
област Варна, гр. Варна, ул. Акад. Андрей Сахаров 19
http://www.kupiv.bg
ИЗПРАТИ ЗАПИТВАНЕ
ИЗПРАТИ ЗАПИТВАНЕТО

Продава 1-СТАЕН
град Варна, Изгрев
Обява: 1a177522288410010

72 900 €
142 580.01 лв.
История на цената
(1 551 €, 3 033.49 лв./m2)

Цената е с включено ДДС
ЗАПАЗИ ОБЯВАТА

Местоположение: град Варна, Изгрев

Допълнителни данни за имотите в района и сравнение с други райони

Покажи

Период

и 3 месеца

* Средните цени са определени чрез медианна стойност